
FABBRICONE TOUR
From a 19th-century factory to a living place to experiment.
Designed in a modern and advanced manner, the factory was completely self-sufficient and housed over 1,000 workers. The structure preserves the original architectural elements, witnessing the technological and industrial evolution of the time.
A rare example of an almost intact 19th-century industrial space, where our manufacturing reality is vibrant and open to new forms of dialogue between community, manufacturing and culture.

Gallery
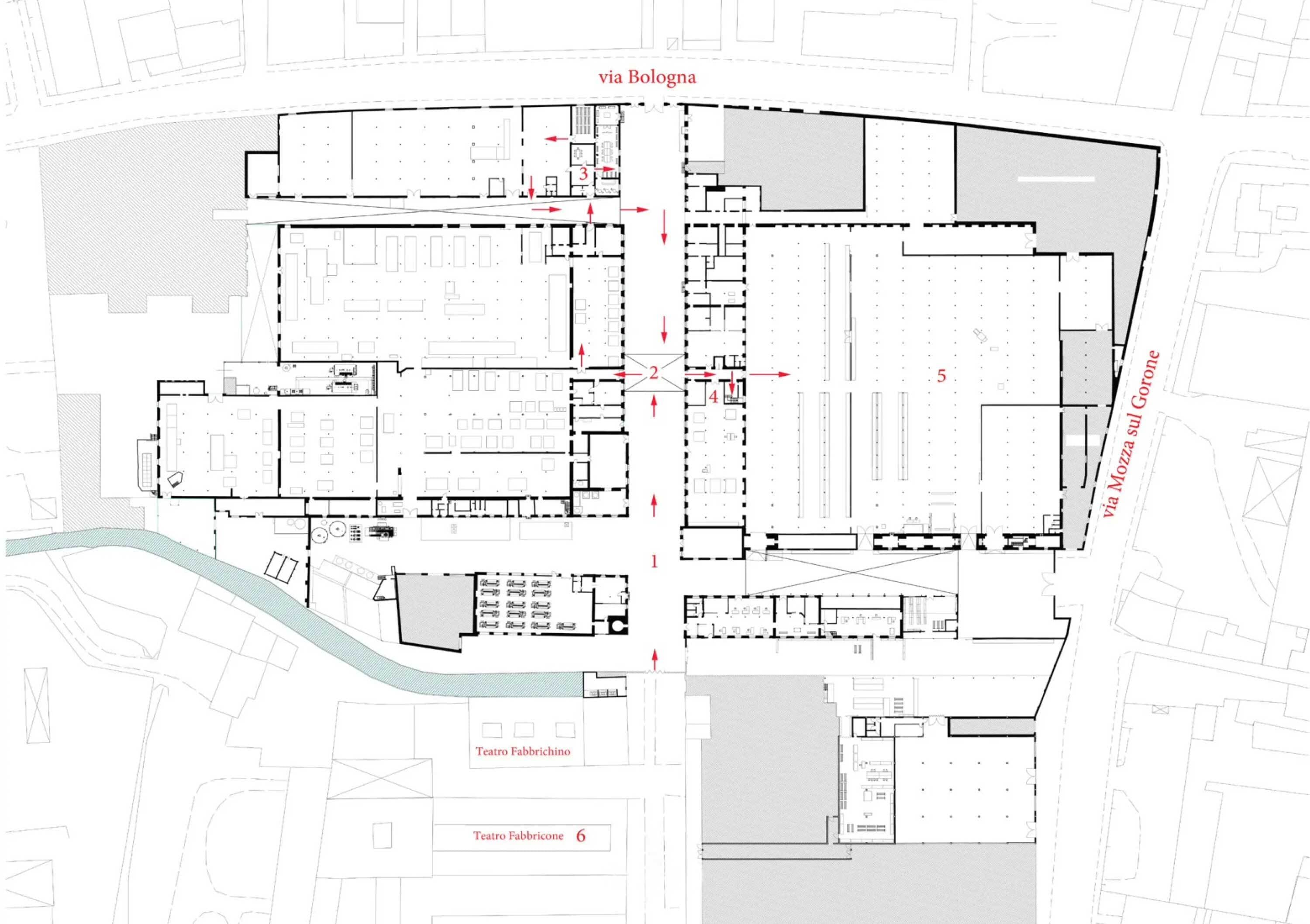
Crossroads

Central Avenue

A long tree-lined avenue crosses the complex from east to west. Functioning as a 'backbone' of the factory, it offers a scenic view from the main gate on Via Bologna to the Bisenzio river, giving the Fabbricone the appearance of a walled 'citadel'.
Crocevia

Affresco Guido Dolci

Affresco Guido Dolci

Affresco Guido Dolci

Affresco Guido Dolci

Affresco Guido Dolci

Affresco Guido Dolci

Nervi Hall

A striking space located on the first floor of the complex, with a gabled roof and cast-iron columns, reminiscent of the style of the Fabbricone's early construction phases. It is part of the structures raised over time, with subsequent extensions.
Chimney

Central facilities for the operation of the factory, including coal-fired boilers, maintenance workshops and carpentry. These spaces supported the daily activities of the factory and contributed to the self-sufficiency of the entire complex.
Water Tanks

A fundamental facility for the water supply of the factory, located near the Gorone canal. Water was a vital resource, not only for textile processing, but also as a source of motive power for production activities. Proximity to water was crucial for the factory, making the entire complex energy self-sufficient and contributing to the technological innovation of the time.
Original fixtures

The wooden windows and doors, dating from the earliest construction phases, maintain stylistic and material unity throughout the complex.
Original fixtures

The wooden windows and doors, dating from the earliest construction phases, maintain stylistic and material unity throughout the complex.
Skylights

Present in several rooms, these elements allowed uniform natural light, which was essential for the quality control of the fabrics, carried out by the 'darners', women responsible for checking and repairing the pieces.
Shed roofs

Used for production departments, these north-facing glass roofs allow natural lighting without excessive exposure to the sun. This is one of the first applications of this type of industrial roofing in Italy, imported from northern European industries in Germany and England, witnessing an innovative structure for the time.
Cannicciato

It represents an old construction technique for creating shed ceilings, a craft technique that has been lost over time. This traditional method made it possible to create lightweight, insulated structures, ideal for stabilising temperature and improving acoustics in large industrial spaces.
Cannicciato

It represents an old construction technique for creating shed ceilings, a craft technique that has been lost over time. This traditional method made it possible to create lightweight, insulated structures, ideal for stabilising temperature and improving acoustics in large industrial spaces.
Pseudo capital

A structural element connecting column and roof beams, ennobled to the point of recalling a classical capital. An element that reflects the influence of neoclassicism, giving the building an aesthetic dignity that lends it architectural importance.
Sottotetto

Sottotetto

Sottotetto

Sottotetto

Soffitto cassettonato

Soffitto cassettonato

We transform our historical space into a dynamic and stimulating place, a hub of new ideas and experimentation
Discover the events







